THANG MÁY TẢI KHÁCH
![]()
Để gia tăng diện tích sử dụng cho cả gia đình nhiều người thì phương án tối ưu nhất chính là nâng tầng. Hoặc với loại hình nhà ở thương mại, nhà ở kết hợp kinh doanh thì việc tối ưu hóa, tiện lợi hóa cho việc di chuyển của con người là vô cùng cần thiết. Từ đây, chúng ta thấy được việc lắp đặt một chiếc thang máy cho nhà phố trở nên cần thiết và mang lại rất nhiều lợi ích to lớn cho người sử dụng.
THANG MÁY TẢI KHÁCH: TỐI ƯU CHẤT LƯỢNG CUỘC SỐNG
Thang máy đang dần đi vào mọi lĩnh vực trong đời sống, góp phần tiết kiệm thời gian, công sức và chi phí cho người sử dụng. Với những lợi ích to lớn mà thang máy mang lại cho con người đã khiến sản phẩm này ngày càng được ưa chuộng và sử dụng nhiều hơn.
Thang máy tải khách ngoài chức năng di chuyển còn là phần nội thất tăng tính thẩm mỹ, sang trọng. Trên thị trường hiện nay có rất nhiều dòng sản phẩm với kích thước hình dáng mẫu mã khác nhau, tùy thuộc vào kiến trúc công trình mà chủ đầu tư lựa chọn lắp đặt hệ thống thang vừa ý tăng tính thẩm mỹ cho cả công trình.
HỆ THỐNG THANG TẢI KHÁCH

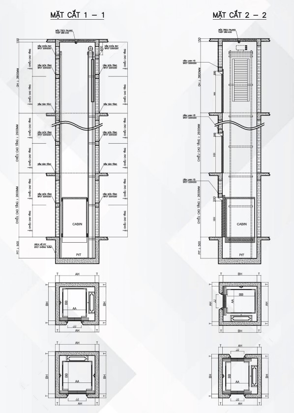
SƠ ĐỒ HỐ THANG TẢI KHÁCH

THÔNG SỐ KỸ THUẬT THANG TẢI KHÁCH

Ưu điểm vượt trội của thang máy tải khách
► Thang máy tải khách giúp tiết kiệm thời gian, công sức khi di chuyển giữa các tầng trong tòa nhà cao ốc, văn phòng, công ty hay nhà dân.
► Lắp thang máy nhà ống giúp tiết kiệm thời gian di chuyển, tiết kiệm công sức đi lại, công sức vận chuyển hàng hóa giữa các tầng.
► Thang máy mang lại sự tiện nghi, thoải mái và đảm bảo sự an toàn cho người sử dụng
► Thang máy góp phần trang trí, gia tăng vẻ đẹp thẩm mỹ của công trình, khẳng định sự hiện đại, chuyên nghiệp và đẳng cấp
► Thang máy mang lại nhiều lợi ích cho chủ đầu tư, là yếu tố quan trọng để đánh giá chất lượng của công trình kiến trúc và thu hút người mua nhà, thuê văn phòng sử dụng…
Thang máy Tân Việt Phát là đơn vị hoạt động trong lĩnh vực tư vấn, thiết kế, lắp đặt và bảo trì, sửa chữa thang máy.. Với hàng nghìn công trình thang máy được chúng tôi lắp đặt tại nhiều tỉnh thành trên toàn quốc, Tân Việt Phát tự hào khẳng định là đơn vị cung cấp thang máy uy tín, chất lượng, được khách hàng tin tưởng và đánh giá cao trong suốt những năm qua.
Dựa theo nhu cầu sử dụng của khách hàng, chúng tôi sẽ tư vấn, đưa ra những phương án thiết kế, lắp đặt thang máy tải khách phù hợp cho từng loại công trình và giúp khách hàng lựa chọn được một thang máy chất lượng, giá rẻ có tải trọng, tốc độ thang và số điểm dừng phù hợp. Mẫu mã, kiểu dáng và các chi tiết trang trí của thang máy cũng được nghiên cứu, lựa chọn và tư vấn kỹ càng cho khách hàng để chiếc thang máy có thể kết hợp hài hòa với kiến trúc và không gian nội thất, tôn thêm vẻ đẹp hiện đại, sang trọng cho căn nhà.

Quy trình lắp đặt thang máy tải khách tại Tân Việt Phát
► Tiếp nhận thông tin từ phía khách hàng, (địa chỉ, tên khách hàng, mẫu thang máy yêu thích….)
► Khảo sát thực tế công trình cần lắp đặt thang máy, vị trí lắp đặt và nơi đặt hố thang máy phù hợp nhất.
► Tư vấn lựa chọn thang máy có số lượng và tải trọng phù hợp.
► Tư vấn lựa chọn nội thất cabin thang máy
► Lập bảng báo giá chi phí lắp đặt thang máy bao gồm: chi phí thiết bị linh kiện, tiền công….
► Tiến hành thi công lắp đặt thang máy theo quy trình tiên tiến, hiện đại, đạt tiêu chuẩn cao, đảm bảo những yêu cầu khắt khe nhất về mặt kỹ thuật.
► Cùng khách hàng kiểm tra lại hệ thống thang máy sau khi hoàn thiện lắp đặt
► Nghiệm thu kết thúc hợp đồng và tận tình hướng dẫn khách hàng sử dụng thang máy lắp đặt tại tòa nhà chi tiết nhất.
Cung cấp các mẫu thang máy tải khách sang trọng, hiện đại cao cấp đa dạng về kiểu dáng thiết kế cùng tính năng hoạt động ổn định, êm ái bền bỉ an toàn luôn là tiêu chí rất được chú trọng trong dịch vụ lắp đặt thang máy của Tân Việt Phát. Bởi chúng tôi hiểu rõ rằng, sở hữu sản phẩm có chất lượng tốt, độ bền lâu cùng giá cả hợp lý, quá trình thi công lắp đặt nhanh chóng, chính xác là điều mà bất cứ chủ đầu tư nào cũng mong muốn.
Được nhiều khách hàng ưa chuộng và tin dùng, các sản phẩm thang máy của Tân Việt Phát từ thang máy gia đình, thang máy, thang máy tải hàng hay thang máy bệnh viện… đều vận hành liên tục, ít xảy ra sự cố, độ bền cao, rất phù hợp với thang máy được lắp đặt cho các tòa nhà cao tầng với hình thức đẹp, sang trọng, mẫu mã đa dạng. Với tính chất sử dụng nhiều, thang máy do Tân Việt Phát lắp đặt thường xuyên được bảo hành bảo trì đúng lịch trình. Hãy liên hệ với chúng tôi qua HOTLINE để được tư vấn tốt nhất.
